:quality(75)/2024_3_4_638451821955823032_cau-tao-may-loc-nuoc-hydrogen-0-1-1.jpg)
Khám phá cấu tạo máy lọc nước Hydrogen, nguyên lý hoạt động và ưu điểm từng loại
Cấu tạo máy lọc nước Hydrogen bổ sung lõi Hydrogen Alkaline, điện phân không màng ngăn và điện phân có màng ngăn như thế nào? Chúng ta sẽ cùng tìm hiểu phương thức hoạt động, cấu tạo và ưu nhược điểm của từng loại, từ đó đưa ra chọn lựa phù hợp với nhu cầu sử dụng nhất.
Thị trường máy lọc nước Hydrogen hiện nay khá đa dạng, gồm có 3 loại chính là máy lọc bổ sung lõi Hydrogen Alkaline, máy lọc điện phân có màng ngăn và máy lọc điện phân không có màng ngăn. Mỗi loại máy đều sở hữu các ưu, nhược điểm riêng biệt, bạn cần hiểu rõ nguyên lý hoạt động, chức năng và cấu tạo máy lọc nước Hydrogen để chọn được loại đúng nhu cầu và mong muốn sử dụng.
Cấu tạo máy lọc nước Hydrogen có lõi Hydrogen Alkaline
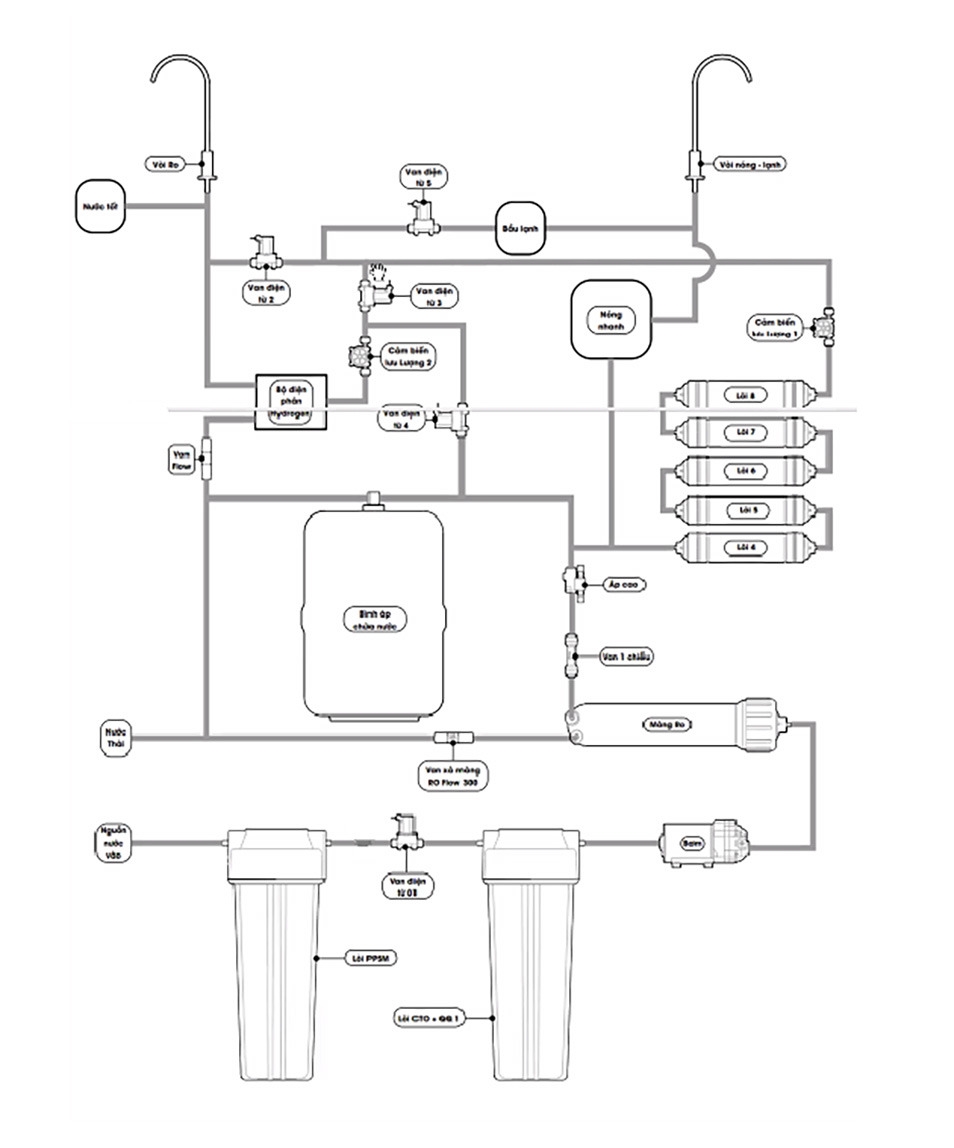
Máy lọc nước Hydrogen bổ sung lõi Hydrogen Alkaline được trang bị hệ thống lọc RO và bộ lõi lọc Hydrogen Alkaline, giúp tạo ra nguồn nước tinh khiết, chứa nhiều hàm lượng Hydrogen, từ 400-600 ppb.
Chi tiết cấu tạo
Thiết bị có cấu tạo chi tiết như sau:
- Hệ thống lọc sơ cấp: Gồm cấp lọc số 1, 2 và 3. Nhiệm vụ của chúng là loại bỏ tạp chất có kích thước lớn như rong rêu, bùn đất, clo dư thừa…
- Màng RO: Giúp tiêu diệt đến 99% tạp chất siêu nhỏ, vi sinh vật, vi khuẩn, vi-rút… cho ra nguồn nước tinh khiết nhất.
- Các lõi lọc chức năng: Được sử dụng để tăng độ ngon ngọt, bổ sung khoáng chất, điện giải cho nước.
- Lõi Hydrogen Alkaline: Được lắp đặt ở vị trí lõi lọc thứ 8, có tác dụng bổ sung Hydrogen và tính kiềm nhẹ cho nước uống.
- Các bộ phận khác: Gồm bơm tăng áp, van điện tử, rơ-le áp thấp, rơ le áp cao… giúp máy vận hành trơn tru.
- Bình chứa nước: Nơi chứa nguồn nước sạch đã qua giai đoạn lọc qua màng RO và chuẩn bị đi qua các lõi lọc chức năng.

Nguyên lý hoạt động
Sau khi trải qua bộ lọc sơ cấp, nước sẽ đi qua tầng lọc chuyên sâu RO. Tỷ lệ nước lúc này giảm xuống còn 50 - 60% thể tích so với lượng nước đầu vào. Nước sạch được trữ ở bình áp chứa nước, rồi đẩy tiếp qua các lõi lọc chức năng và lõi lọc Hydrogen Alkaline, giúp tạo ra thành phẩm nước Hydrogen tuyệt vời.
Ưu điểm
- Sử dụng công nghệ RO.
- Phù hợp với mọi nguồn nước ở Việt Nam.
- Tiết kiệm nước đến 75%.
- Nguồn nước đầu ra đảm bảo an toàn, chất lượng cao, chống lão hoá.
- Sở hữu các lõi lọc bổ sung khoáng chất, có lợi cho sức khỏe.
.jpg)
Nhược điểm
- Dễ bị tắc màng lọc RO, do đó cần bảo dưỡng định kỳ.
- Nước Hydrogen có độ pH không ổn định.
Cấu tạo máy lọc nước Hydrogen điện phân không màng ngăn
Đây là dòng máy được ứng dụng công nghệ điện phân nước không màng ngăn để tạo ra nước ion kiềm.
Chi tiết cấu tạo
- Lõi lọc tinh: Có cấu tạo từ than hoạt tính, cát thạch anh… giúp loại bỏ nhanh tạp chất có kích thước lớn, như vậy sẽ tạo ra nguồn nước sạch cơ bản.
- Hệ thống lọc điện phân: Gồm nhiều tấm điện cực làm bằng chất liệu Titan nguyên khối mạ Platinum, đảm nhận công việc điện phân, giúp tạo ra nước ion kiềm ở cực dương (+) và nước axit ở cực âm (-).
- Các bộ phận khác: Gồm bình chứa nước, máy bơm, van áp thấp, van áp cao… giúp máy hoạt động thuận lợi.

Nguyên lý hoạt động
Các tạp chất sẽ được giữ lại tại lõi lọc tinh. Lúc này nguồn nước sạch được chuyển tiếp đến buồng điện phân, nơi chứa nhiều tấm điện cực để phân tách nước. Đầu điện cực dương (+) là nước mang tính axit có pH < 7. Trong khi đầu điện cực âm (-) là nước ion kiềm có độ pH > 7. Nước sau khi được điện phân sẽ đi vào các bình chứa và bạn có thể sử dụng trực tiếp.
Ưu điểm
- Các tấm điện phân thường khó hư hỏng, có thể dùng trong thời gian dài.
- Nguồn nước đầu ra chứa hàm lượng lớn vi khoáng tự nhiên, tốt cho sức khỏe.
- Hàm lượng Hydrogen trong nước cao hơn nhiều so với máy lọc bổ sung lõi, từ 600 - 800 ppb.
- Điều chỉnh linh hoạt độ pH phù hợp với từng mục đích sử dụng:
- pH 2.5 - 3.5: Nước giàu axit, có thể sử dụng để vệ sinh cá nhân.
- pH 5.5 - 6.0: Nước có tác dụng dưỡng da.
- pH 8.5 - 9.5: Nước ion kiềm giàu Hydrogen, có thể sử dụng để uống và nấu nướng.
- pH trên 10: Nước giàu kiềm giúp làm sạch thực phẩm, ngâm rau củ quả.
.jpg)
Nhược điểm
- Giá thành máy lọc nước loại này khá cao.
- Máy tạo ra nước cứng, do đó cần bổ sung thêm bộ lọc để làm mềm nước.
- Có độ pH không ổn định.
Cấu tạo máy lọc nước Hydrogen điện phân có màng ngăn
So với 2 dòng máy lọc nước kể trên thì thiết bị lọc nước Hydrogen điện phân có màng ngăn được đánh giá hiện đại nhất. Máy được tích hợp giữa hệ thống lọc nước RO, các lõi chức năng và bộ điện phân.
Có thể bạn chưa biết, bộ điện phân chứa nhiều tấm điện cực, chính giữa là các màng ngăn để giảm thiểu việc các phân tử H+ và OH- hòa vào nhau sau khi điện phân. Như vậy nguồn nước ion kiềm đầu ra không bị nhiễm axit và có độ pH ổn định.
Chi tiết cấu tạo
Cấu tạo máy lọc nước Hydrogen điện phân có màng ngăn gồm 4 phần chính:
- Hệ thống lọc RO:
- Lõi lọc thô: Giúp làm sạch các cặn bẩn, tạp chất có trong nước.
- Lõi lọc RO: Ứng dụng công nghệ thẩm thấu ngược RO, giúp loại bỏ 99% tạp chất.
- Lõi lọc chức năng: Bổ sung mùi vị và vi khoáng có lợi cho nước, hơn nữa còn có chức năng chống tái nhiễm khuẩn.
- Hệ thống điện phân: Có cấu tạo từ 3 - 5 tấm điện phân làm bằng vật liệu Titan nguyên khối tráng Platinum. Vai trò của chúng là giúp phân tách nước thành nước ion kiềm và nước axit.
- Các tấm ngăn điện cực: Đảm bảo các phân tử nước tạo ra không bị hoà lẫn vào nhau, giữ cho độ pH trong nước luôn ổn định.
- Các bộ phận vận hành: Gồm van xả nước, cảm biến lưu lượng, rơ-le, bầu làm nóng/lạnh và hệ thống bình chứa.

Nguyên lý hoạt động
Nguồn nước đầu vào được bơm vào máy lọc, sau đó trải qua hệ thống lọc RO, phân tách tại buồng điện phân rồi tiếp tục lọc qua màng RO để tạo ra nước tinh khiết. Các tấm điện phân thực hiện chức năng phân tách nước ở hai đầu điện cực, giữ cho nước sau khi được phân tách không bị trộn lẫn vào nhau.
Giai đoạn cuối cùng là nước ion kiềm có độ pH trên 9,5 được tạo ra ở cực âm sẽ đi qua một loạt các lõi lọc chức năng, góp phần bổ sung khoáng chất cho nước.

Ưu điểm
- Do số lượng tấm điện cực nhiều nên hàm lượng Hydrogen có thể lên đến 1300 - 1500 ppb.
- Nước đầu ra không bị lẫn tính axit, có ORP âm sâu giúp chống lão hoá.
- Độ pH của nước duy trì ở mức 9,5 tiêu chuẩn.
- Sử dụng công nghệ màng lọc RO nên sẽ tương thích với nhiều nguồn nước ở nước ta.
- Sở hữu nhiều lợi ích hơn so với máy lọc màng RO và công nghệ điện phân.
Tạm kết
Bài viết trên đây là thông tin về cấu tạo máy lọc nước Hydrogen, kèm theo cơ chế vận hành, ưu, nhược điểm của từng loại máy, giúp bạn tự đánh giá và lựa chọn dễ dàng. Mong rằng bạn sẽ tìm được thiết bị lọc nước phù hợp với nhu cầu sử dụng và ngân sách gia đình.
Xem thêm:
- So sánh máy lọc nước RO và Hydrogen: Đâu là lựa chọn tốt nhất dành cho bạn?
- Top 5 máy lọc nước làm đẹp da, ngăn ngừa lão hóa 2023
Để khám phá các sản phẩm máy lọc nước Hydrogen chính hãng, vui lòng truy cập trang chủ của FPT Shop. Tại đây, chúng tôi luôn sẵn lòng hỗ trợ, giúp bạn nhanh chóng sở hữu một thiết bị lọc nước chất lượng, đáp ứng nhu cầu sử dụng nguồn nước sạch mọi lúc, mọi nơi.
Xem ngay các mẫu máy lọc nước giá tốt tại đây:
:quality(75)/estore-v2/img/fptshop-logo.png)